Investorenauswahlverfahren Mitte Nilkheim

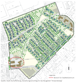
Gestaltungsvorschlag für das Baugebiet "Anwandeweg", Stadt Aschaffenburg
Gestaltungsvorschlag für das Baugebiet "Anwandeweg", Stadt Aschaffenburg

Das Baugebiet „Anwandeweg“ im Stadtteil Nilkheim ist seit Jahrzehnten das größte Baugebiet, dass die Stadt Aschaffenburg für den Wohnungsbau ausgewiesen hat. Ca. 50 % des Bauvorhabens sind bereits umgesetzt, einen der letzten größeren Bausteine stellt die Ergänzung des Stadtteilzentrums in Nilkheim dar.

Die Stadt Aschaffenburg möchte daher im Baugebiet "Anwandeweg" ein Stadtteilzentrum mit Seniorenpflegeeinrichtung (mit Tagespflege und Seniorenwohnen), Lebensmittel-Vollsortimenter und einem gastronomischen Angebot errichten lassen.

Das Baugebiet „Anwandeweg“ befindet sich in zentraler Lage im Stadtteil Nilkheim. Es liegt am südwestlichen Rand des Neubaugebietes, Ecke Martin-Luther-Straße/ Theodor-Heuss-Straße.
Das neue Stadtteilzentrum soll eine Einkaufsmöglichkeit für das neue Gebiet mit einem Einwohnerpotenzial von rd. 1.800 Einwohnern sowie für die angrenzenden bestehenden Quartiere bieten. Dadurch wird es kurze Wege ermöglichen sowie den Bedarf nach Pflegeplätzen und seniorengerechtem Wohnen decken. Die Stadt möchte daher das Grundstück mit dieser Zielsetzung über ein Investorenauswahlverfahren vergeben.

Es handelt sich um ein zweistufiges Investorenauswahlverfahren in Anlehnung an ein Verhandlungsverfahren mit Teilnahmewettbewerb. In der ersten Stufe wird ein Teilnahmewettbewerb durchgeführt, anschließend werden bis maximal 4 geeignete Bewerber für das darauffolgende Verhandlungsverfahren/Angebotsphase zur Abgabe eines Nutzungs- und Bebauungskonzeptes aufgefordert.

Mit dem Investorenauswahlverfahren soll ein Bewerber bzw. eine Bewerbergemeinschaft, bestehend aus Investor (Projektentwickler, Bauträger o.ä.) und ggf. Architekten/Stadtplaner sowie Landschaftsarchitekten (Nachunternehmer) gefunden werden, der bzw. die geeignet sind, auf dem Vorhabengrundstück eine adäquate und qualitätsvolle Bebauung nach Maßgabe der Vorgaben der Stadt Aschaffenburg zu entwickeln und baulich zu realisieren.